Planungsleistung
im Denkmal
Die Grundlage meiner Arbeit bilden millimetergenaue Punktwolken in Kombination mit ergänzenden Tachymeterdaten. Die Verbindung aus 3D Laserscanning und Tachymeter-Vermessungstechnik ermöglicht es mir, ein präzises 3D Modell als Basis für weitere Planungsleistungen zu erstellen.
Mein Leistungsumfang umfasst:
- Bestandsplanung
- Bauanträge und Entwurfsplanung
- Werkplanung und Arbeitsvorbereitung
- Schadenskartierung und Tragwerksanalyse
Aus Interesse am Denkmal
Architektur als eine Ausdrucksform des Menschen
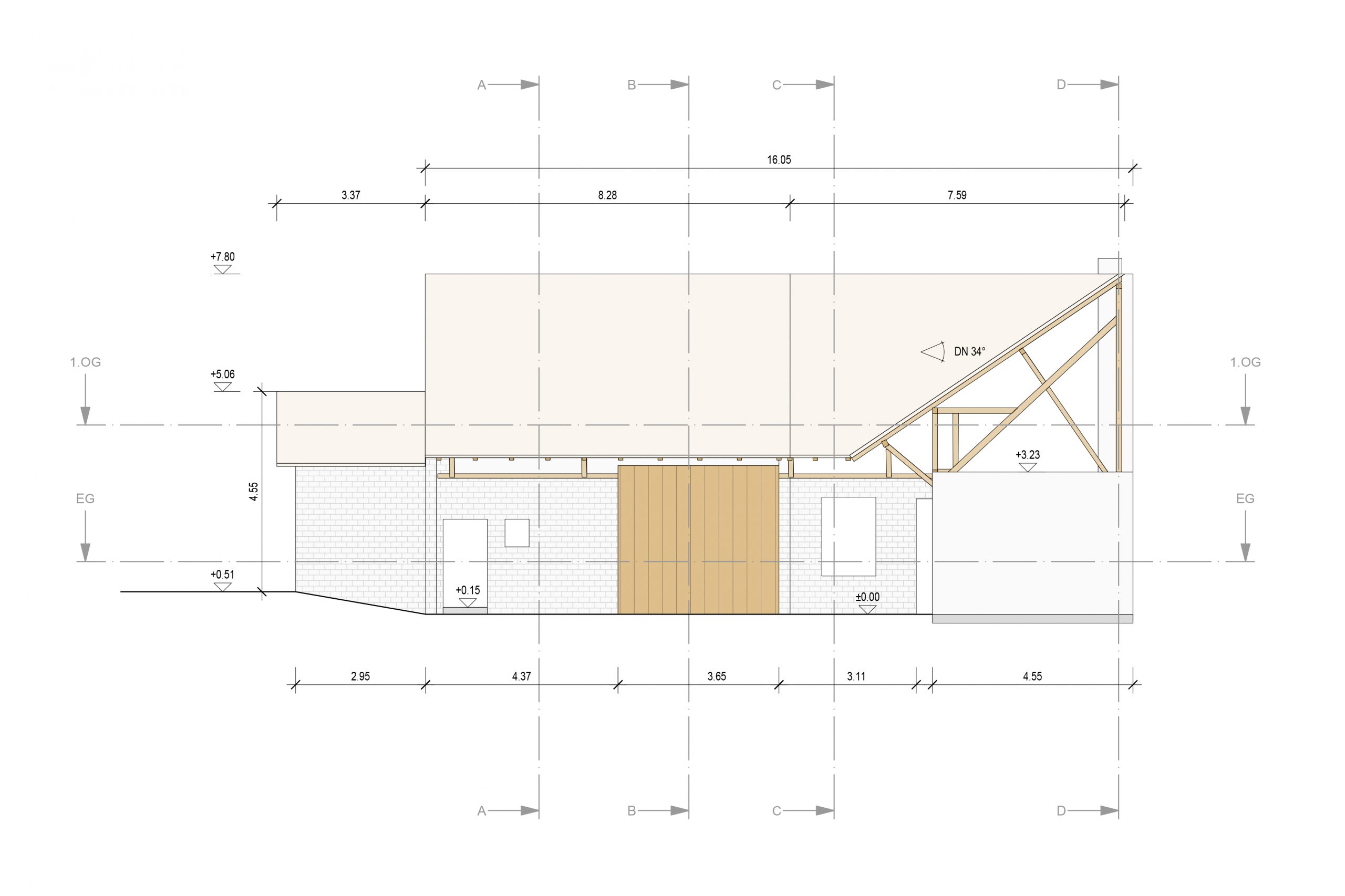
Stephanuskirche Königsbach-Stein
Bestandserfassung und Schadenskartierung für Denkmalsanierung des Kirchturms
- 3D Scan des Bestandes
- Schnittansichten der Punktwolke
- 3D Modellierung der Gebäudehüllen
- Tragwerkskonstruktion des Kirchturms
- Erstellung von Bestandsplänen des Kirchturms
- Tragwerksanalyse und Schadenskartierung
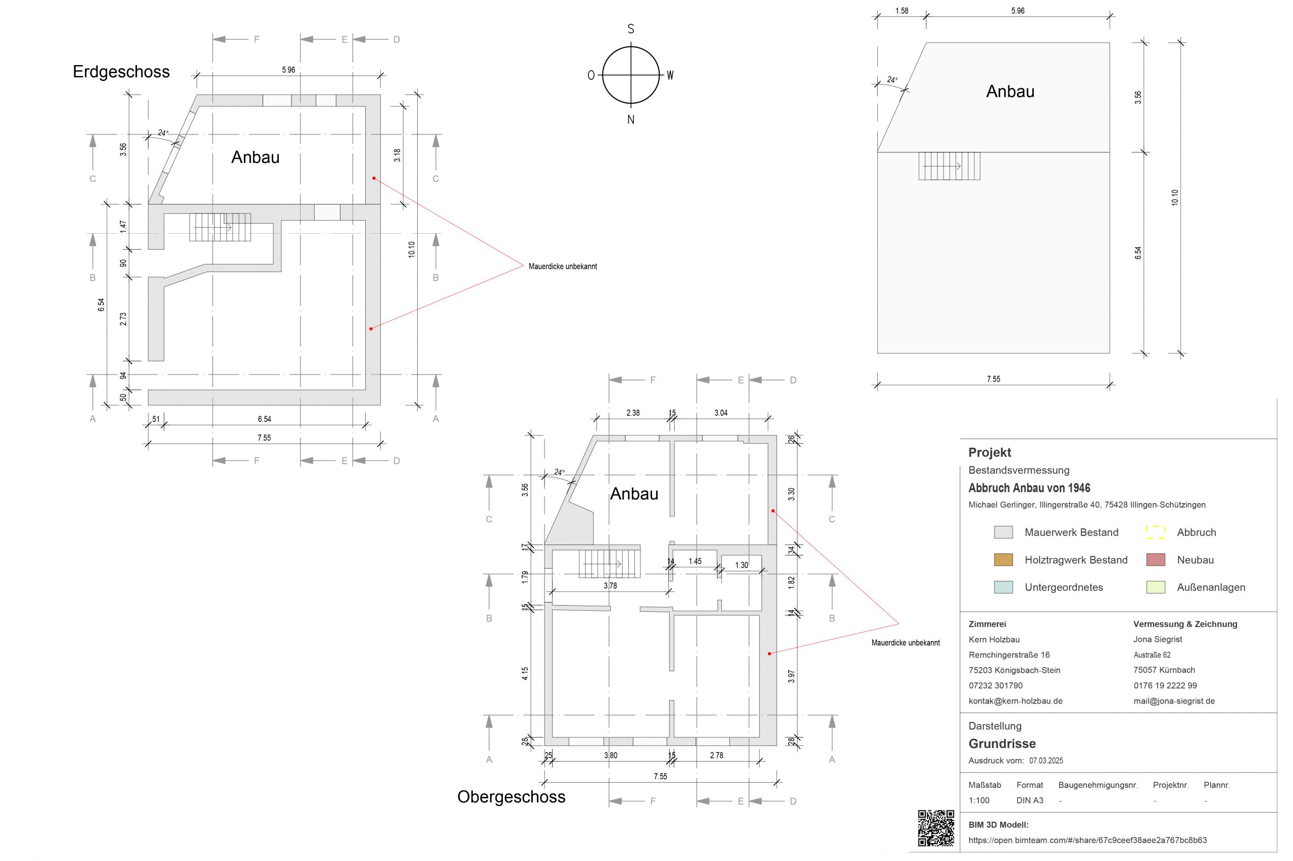
Scheune Langensteinbach
Bestandserfassung und Planwerkszeichnung für Entwurfsplanung und Bauantragsstellung
Aufgaben:
- 3D Scan des Bestandes
- Schnittansichten der Punktwolke
- 3D Modellierung der Gebäudehüllen
- Tragwerkskonstruktion des Holzbaus
- Erstellung von Bestandsplänen inkl. Lageplan
in Kooperation
mit Kern Holzbau aus Königsbach-Stein
























